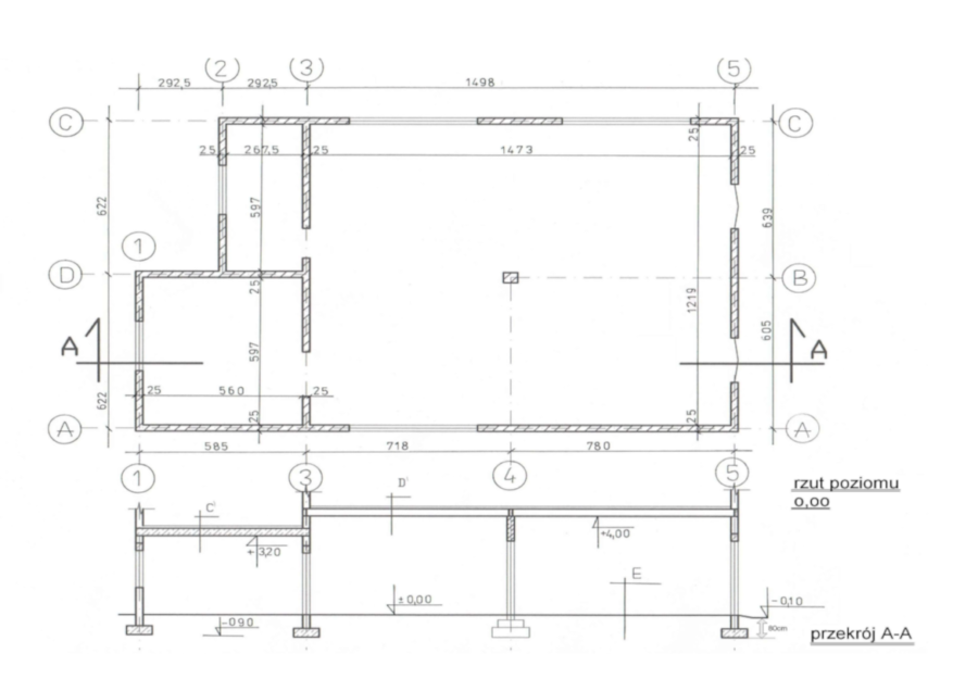
Szczegółowy rzut poziomy oraz przekrój hali żelbetowej
Projekt hali żelbetowej, obliczenie trzech wybranych elementów konstrukcyjnych. Zapoznanie się ze szczegółowymi planami hali, czyli rzut poziomy oraz przekrój pionowy hali.
Przed rozpoczęciem obliczeń zapoznamy się z budynkiem hali żelbetowej, której elementy będziemy obliczać, zbroić oraz rysować. Zacznijmy od tego, że naszym zdaniem tak obszerne projekty na etapie nauki na studiach są niesamowicie przesadzone, gdyż takie rzeczy robią biura projektowe, składające się z kilku osób. Przechodząc nad tym do porządku zobaczmy jaki obiekt będzie nam towarzyszył przez cały kurs Żelbetu II. Korzystając jeszcze z sytuacji, że nie rozpędziliśmy się jeszcze z tym kursem, pragnę jeszcze raz przypomnieć, że obowiązkowym kursem do przerobienia jest oczywiście kurs Żelbet I, bez znajomości którego rozpoczynanie nauki tego materiału niestety mija się z celem. Dobrze, dwa razy już przypominałem o poprawnej kolejności, więc z czystym sumieniem zaczynamy!
Szczegółowy rzut poziomy oraz przekrój hali żelbetowej
Poniżej szczegółowy rzut poziomy budynku halowego w konstrukcji żelbetowej oraz jeden przekrój pionowy A-A. Poziome osie budynku zostały oznaczone cyframi oraz 1 do 5, natomiast pionowe literami od A do C. Co ułatwi nam zestawienie elementów do obliczenia.
Rzut i przekrój budynku

Wykaz elementów konstrukcyjnych
Oprócz obliczania stricte elementów konstrukcyjnych nie zabranie też zakotwienia między różnymi elementami.
- Zakotwienie prętów dolnych na podporze skrajnej
- Zakotwienie prętów odgiętych oraz strzemion (połączenie dwóch rygli)
- Zakotwienie prętów na podporze pośredniej (połączenie rygla ze słupem)
- Zakotwienie słupa ze stopą fundamentową
Wykaz tych elementów wygląda imponująco, co za tym idzie ilość materiałów do nauki w tym kursie również będzie imponująca. Bardzo lubię porządek, dlatego kolejność obliczania będzie zgodna z powyższym wykazem elementów konstrukcyjnych i zgodnie z waszymi życzeniami pojedyncze poradniki nie będą nieskończenie długie, ale aby ułatwić Wam naukę pojedyncze elementy, będą rozbite na osobne wpisy i poukładane zgodnie z logiczną kolejnością obliczania.

