Stopa fundamentowa – parametry gruntowe oraz wstępne wymiary
Spis treści
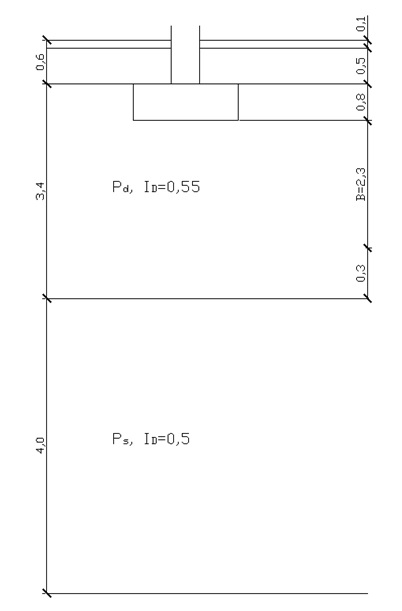
Stopa fundamentowa parametry gruntowe pod stopą fundamentową oraz wstępne wymiary projektowanej stopy gruntowej. Założony przekrój gruntu pod projektowaną stopą fundamentową.
Parametry gruntowe
Parametry gruntowe pod projektowaną żelbetową stopą fundamentową.

Przekrój gruntu
Przekrój gruntu do głębokości 8,00 metrów od poziomu gruntu.

Na podstawie powyższego przekroju gruntu i zadanego rodzaju gleby musimy sprawdzić, czy wstępnie przyjęte wymiary będą w stanie przenieść obciążenie oraz odpór gruntu. Poniżej
Stopa fundamentowa
Wstępnie przyjęte wymiary stopy fundamentowej. Wymiary te są przyjęte na „oko”, a więc w kolejnych materiałach musimy sprawdzić czy stopa przeniesie oddziaływania zewnętrzne oraz odpór gruntu.

a_{s1} = 0,50 m ;a_{1} = 1,10 m
\\
a_{s2} = 0,40 m ;a_{2} = 1,00 m
\\
w = 0,30 m>\frac{h}{0,30}=\frac{0,80}{0,30}=0,26mWidzimy, że na stopie fundamentowej umieszczony jest słup o wymiarach 0,40m x 0,50m. Natomiast wstępne wymiary stopy fundamentowej zostały określone następująco.
Podstawa stopy w rzucie ma B=2,30m szerokości oraz L=2,55 m długości. Całkowita wysokość stopy została przyjęta o wymiarze h=0,80m.
W kolejnym materiale zbierzemy wszystkie oddziaływania działające na wymiarowaną stopę fundamentową, a następnie przejdziemy do sprawdzania wymaganych warunków. Serdecznie zapraszam do kolejnego materiału.

