„§ 229 Jeśli budowniczy wybudował komuś dom, a dzieła swego nie wykonał trwale i dom, który wybudował, zawali się i zabije właściciela, budowniczy poniesie karę śmierci.”
Kodeks Hammurabiego XVIII w. p.n.e
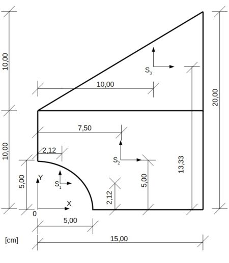
Obliczenie charakterystyk w figurze płaskiej złożonej z trzech figur prostych
Obliczenie charakterystyk w figurze płaskiej złożonej z trzech figur prostych
Absolwent Uniwersytetu Zielonogórskiego wydziału Budownictwa, Architektury i Inżynierii Środowiska. Od 2017 roku czynny zawodowo w branży drogownictwa w europejskim koncernie na terenie Niemiec, od 2022 roku na stanowisku kierownika budowy.